CONCEPT
多彩な暮らしにフィットする
パズルのように楽しい規格住宅
理想のライフスタイルにフィットするパズルのような規格住宅。たっぷり収納の平屋、ガレージハウス、中庭のある家、シンプルモダン、アメリカンテイストなど豊富なバリエーションと、建物価格、水回り、照明、カーテンまで含めたトータルプライスが魅力。わかりやすい価格設定だから、お金の心配や追加費用に煩わされることなく、安心して家づくりを愉しめます。
みんなの声から生まれた間取りと
明確な価格設定から
選んでつくる
規格住宅
LINEUP
-
スクエアハウス
32坪プラン
2,332万円〜(税込)
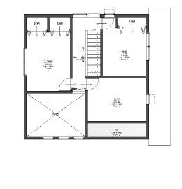
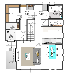
スクエアハウス
バルコニーのある
シンプルモダンな四角い家ワイドなバルコニーとつながるサンルームのある住まいです。光をたっぷり取り込む明るいサンルームは、趣味を楽しむスペースとしても自由に使えます。家族と顔があいやすいリビング階段、帰宅後すぐ手洗いできる手洗い場、水回りの直線的な裏動線も便利です。
1F
2F
DATA
延床面積:107.64㎡(32.55坪)
床面積:1F / 54.65㎡(16.53坪)
2F / 52.99㎡(16.02坪)PRICE
本体価格:2,332万円
-
ガレージハウス
30坪プラン
2,882万円〜(税込)
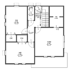
ガレージハウス
ガレージとプライベート
バルコニーのある家建物と美しく一体化したビルトイン・ガレージのある住まいです。ガレージ上のバルコニーは広々としたプライベートスペースとして、ムダなく楽しく使えます。大容量の土間の玄関収納や水回りを中心とする回遊動線が、暮らしやすさと家事ラクを叶えてくれます。
1F
2F
DATA
延床面積:98.12㎡(29.67坪)
床面積:1F / 52.99㎡(16.02坪)
2F / 45.13㎡(13.65坪)PRICE
本体価格:2,882万円
-
ラク家事を叶える家
30坪プラン
2,431万円〜(税込)
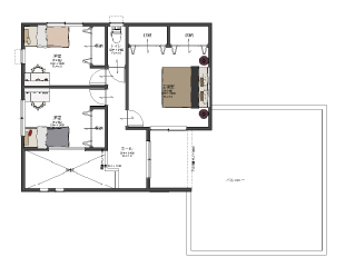
ラク家事を叶える家
吹き抜けが心地いい
ジャパニーズモダンの家屋根のかかったウッドデッキと吹き抜けのある、落ち着いた佇まいの住宅。玄関からLDKへの表動線とファミリー玄関から水回りへの裏動線、スッキリ片付く広い土間収納、乾いた洗濯物をハンガーのまましまえる大容量クローゼットなど、ラク家事が叶う暮らしやすい間取りです。
1F
2F
DATA
延床面積:100.19㎡(30.30坪)
床面積:1F / 57.13㎡(17.28坪)
2F / 43.06㎡(13.02坪)PRICE
本体価格:2,431万円
-
フラットハウス
26坪プラン
2,464万円〜(税込)
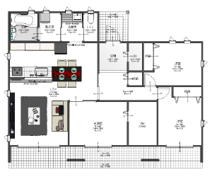
フラットハウス
ギャラリーのように
洗練されたモダンな平屋シンプルモダンのミニマルな平屋です。スペースを有効活用することでコンパクトな中にも3LDKのゆとりの間取りを実現。家の幅いっぱいに広がるワイドなテラスへは、リビング・主寝室・個室から自由に出入りできるため、外の自然とつながりながら、ゆったり広々暮らせます。
DATA
延床面積:85.29㎡(25.80坪)
床面積:1F / 85.29㎡(25.80坪)PRICE
本体価格:2,464万円
-
リゾートハウス
25坪プラン
2,233万円〜(税込)
リゾートハウス
リゾートのように
リラクシーで開放的な平屋片流れ屋根を組み合わせたシャープなデザインの平屋。屋根形状を生かした高天井がリゾートのように開放的な大空間を構成。リビングを中心とした3LDKの間取り、便利なファミリー玄関、大容量パントリーなど快適さと心地よさにこだわって設計されています。
DATA
延床面積:83.63㎡(25.29坪)
床面積:1F / 83.63㎡(25.29坪)PRICE
本体価格:2,233万円
-
ナチュラルフレンチハウス
30坪プラン
2,288万円〜(税込)
ナチュラルフレンチハウス
大人かわいい空間で
好きなものと暮らすオーガニックなフレンチテイストの2階建てです。三角屋根と素材感のある白壁、小さな窓が大人のカワイさを演出。ひと続きのLDKやリビング階段は、お子さんに目が届きやすいので安心です。小窓は雑貨を飾るための壁の余白を残すとともに、大切な家具の日焼けも防ぎます。
1F
2F
DATA
延床面積:99.36㎡(30.04坪)
床面積:1F / 49.68㎡(15.02坪)
2F / 49.68㎡(15.02坪)PRICE
本体価格:2,288万円
PERFORMANCE
品質・性能
ADC HOMEの家は
「安心×快適×安全」の
最高基準です。
-
HIGH QUALITY
断熱等性能等級
6
-
STRENGTH
耐震等級
最高等級3
-
ECOLOGY
一次エネルギー
消費量等級6
FACILITY
標準設備
Puzzleの表示価格〈本体価格〉には、建物価格、水回りの設備や照明、カーテンも含まれます。
わかりやすい価格設定で、余計なお金を考える必要もなく、安心して家づくりを進めることができます。
-
KITCHEN
最新システムキッチン
-
BATHROOM
こだわりの水まわり
-
INTERIOR
洗練されたインテリア
-
WINDOW
断熱サッシ
-
LIGHTING
住まいを彩る明かり
-
AIR CONDITIONER
エアコン
